2 1

2 bed Flat - Conversion - Sold
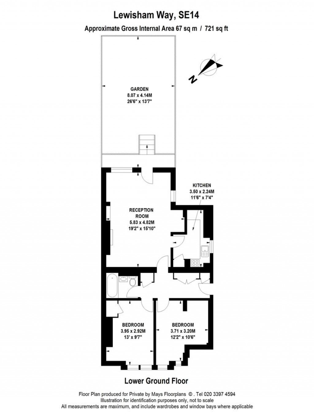
Lewisham Way, London
£420,000 (Leasehold With Share Of Freehold)

  • Share of Freehold
  • Private Garden
  • Two Double Bedrooms
  • Off-street Parking
  • External Bicycle Storage
  • Private Entrance
  • Built-in Storage
  • Excellent Transport Links
  • Semi Open-plan Kitchen
  • Recently Decorated & New Carpets
A spacious, two double bedroom, garden flat in a convenient location.

This stunning garden flat comprises; a spacious and light reception room with direct access to a private garden, a modern semi open-plan kitchen, a large master bedroom, a further double bedroom, entrance hall with built-in storage and a modern bathroom. The property has been recently redecorated and has new carpets in the bedrooms.

Further benefits include; a large private garden, private entrance, wooden flooring, off-street parking for one car and external bicycle storage. Council Tax Band - C

The property is of interest to both owner occupiers and investors.

Council Tax Band: C
Service Charge: Approx.: £1,272 per year
Ground Rent: £0 per year
Leasehold: Approx. 959 Years Remaining of 999 years

The property is located on Lewisham Way, conveniently for local amenities and within easy access of Central London and Canary Wharf. Local amenities include a Sainsbury’s Superstore (under 10 minutes’ walk), a large selection of restaurants and bars/pubs. Transport links include; Overground and National Rail services from New Cross and New Cross Gate Stations (under 5 minutes’ walk), DLR from Deptford Bridge Station (13 minutes’ Walk) and Thameslink and National Rail from Deptford Station (13 minutes’ walk).

Floorplans For Lewisham Way, London
EPC For Lewisham Way, London
Arrange a viewing for Lewisham Way, London

For further details on this property please call us on:
020 4526 6150

Download PDF Download PDF Arrange Viewing